Piscina Municipal Sanlúcar La Mayor
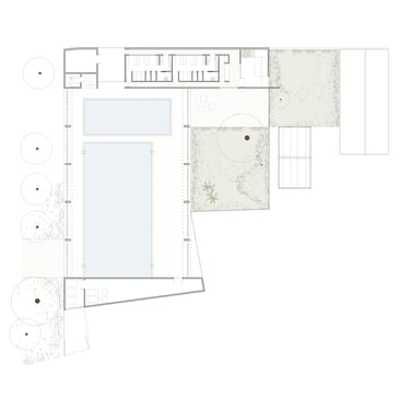
El diseño arquitectónico de la nueva piscina se centra en una propuesta funcional y estética que prioriza la experiencia del usuario y la integración con el entorno. El proyecto organiza las instalaciones en dos volúmenes estratégicos, un volumen funcional que alberga los espacios principales como son acceso y vestuarios y un volumen opuesto donde se ubican los sistemas técnicos que hacen funcionar el edificio.
Ambos volúmenes se conciben como dos de los perímetro del espacio principal donde se ubican las piscinas, que se termina de consolidar con dos pórticos de hormigón armado que actúa como soporte de la cubierta retráctil permitiendo el uso de las instalaciones durante todo el año.
La orientación suroeste maximiza la iluminación y ventilación natural optimizando la eficiencia energética, mientras que los pórticos estructurales garantizan amplitud y conexión visual con el entorno interior ajardinado de la parcela.


SEVILLA
SANLÚCAR LA MAYOR
SITUACIÓN:
Av. Polideportivo, s/n
AÑO:
2024
PROMOTOR:
Ayuntamiento de Sanlúcar La Mayor








